![]() |
|
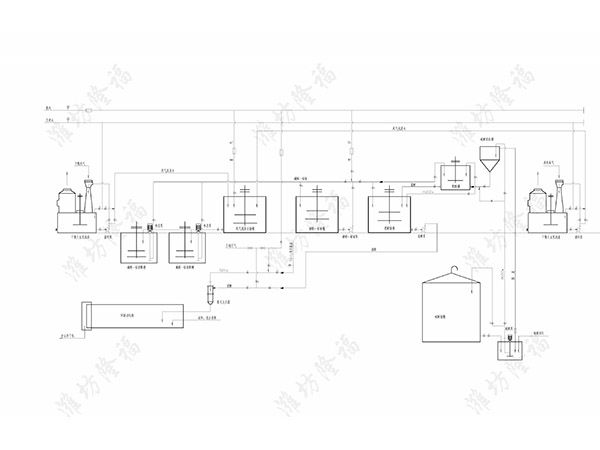
工藝簡介:
1、 濃硫酸、水按比例稀釋后經轉子流量計、液氨汽化后經渦液流量計進入管式反應器,瞬間中和反應生成硫酸銨料漿,產生壓力將硫酸銨料漿噴入轉鼓造粒機內。
2、 磷酸一銨(或熔融)、氯化鉀經粉碎、計量后,進入轉鼓造粒機內,粉狀物料與硫酸銨料漿混合,形成一定液相的固溶體,在轉鼓造粒機內滾動造粒,同時在高溫下各物料間復分解反應生成復鹽。;
3、 造粒后的物料經烘干、冷卻、篩分、計量、包裝成為成品。
氨酸法(噴漿)造粒復合肥重要組成設備:
1、管式反應器。管式反應器安裝在造粒機入口端,平行伸入造粒機內,硫酸與液氨中和反應產生的蒸汽壓力將料漿均勻的噴到造粒機內的物料上,使物料與料漿充分混合均勻造粒。
2、轉鼓造粒機。轉鼓造粒機內襯耐高溫、耐酸、耐磨的天然橡膠板并在造粒機筒體上開氣孔,使物料在造粒機轉動過程中隨著襯板的振打而自然脫落,防止粘壁。
3、造粒尾氣。生產過程中,硫酸與氣氨在反應過程中會有過量的氣氨逸出。轉鼓造粒機尾部采用全密封裝置,將生產過程中產生的尾氣通過離心式風機送到文丘里洗滌塔中處理,洗滌液使用一段時間后,用泵送到配酸工序作為工藝水使用。
氨酸法(噴漿)造粒生產復合肥優勢:
1、 投資省:在原蒸汽轉鼓造粒復合肥裝置上增加管式反應器、造粒尾氣洗滌裝置、氨酸計量裝置和造粒機襯板改造就可進行生產。
2、 液氨和硫酸直接進入造粒機。稀硫酸既是一種粘性原料又充當液相參與造粒過程,并能提供一定的熱能,提高造粒時物料的溫度,降低物料的含水量,大大減少了干燥的負荷。
3、 氨酸中和反應生產的硫酸銨料漿可替代粘性造粒添加劑,在生產過程中不需要添加膨潤土或者凹凸棒土等粘結劑。成球率高,物料返料比低,同等轉鼓造粒工藝產量可提高20%~30%,降低生產成本。
4、 可生產總養分含量25-54%的各種產品,養分配比調節幅度寬;產品質量指標符合GB15063-2001標準,顆粒圓整、光滑、抗壓強度高,肥料水溶性好,水分含量低。
全自動配料區
|
|
人工配料區
|
|
造粒區—氨化造粒
|
|
肥料烘干—肥料冷卻
|
|
|
|
成品篩分(2.3mm~4.5mm)
|
|
LNG熱風爐 生物質能熱風
|
|
包膜(防結塊)
|
|
顆粒包裝秤

機器人碼垛
|
|
從廠區規劃、工藝設計、設備選型、設備制作、設備安裝、試運行直至交付正式投產,濰坊隆福全程跟蹤服務
網址:m.lizaiwu.cn
聯系方式:王總13953699265
孫總 18263637732
| 上一條:20萬噸BB肥生產線 | 下一條:尿熔噴漿造粒復合(混)肥 |

























